【ポイント解説】階段・エレベーター・段差解消機
【目次】
1.階段におけるポイント

階段については、視覚障害等のある児童生徒等の転落、転倒等の事故の危険が無いよう安全性の確保、昇降しやすさに配慮することが必要です。また、災害時の避難等の観点から階段に変わるスロープ等の設置を検討することも必要な視点です。
(円滑に利用できる階段のポイント)
- 階段は、安全かつ円滑に利用できる幅員及び勾配を確保するとともに、表面は滑りにくい仕上げとすることが重要である。
- 階段は、段の上端と下端を認識しやすくするため、色相や明度、彩度の差等に配慮することが重要である。
※踏面の端部(段鼻)とその周囲の部分(踏面等)との色の明度、色相又は彩度の差が大きいことにより、段を容易に識別できるものとする。
当事者からのコメント(視覚障害)
色覚にも多様性があり、特性によっては同系色の色が混在していると境界線を認知しづらいです。
- 主要な階段は、直階段又は折り返し階段とし、踏面及び蹴上げの寸法は一定とすることが重要である。
※主要な階段は回り階段としない。
回り階段の例
「高齢者、障害者等の円滑な移動等に配慮した建築設計標準」(令和7年5月国土交通省)より
- 階段には、踊り場等の空間を、非常時の避難や転倒時の危険防止等にも配慮しつつ計画することが重要である。
- 階段の上端に隣接する部分(廊下、踊り場)には、点状ブロック等を敷設することが重要である。
※視覚障害者に対し段差の存在の警告を行うために敷設が必要。 - 段鼻は、識別しやすく、つまずきにくいものとすることが重要である。
- 手すりは、視覚障害者にとっては有効な誘導サインともなるため、設置位置などに留意し、連続して設置することが望ましい。
- 視覚障害者の利用に配慮して、階段上下端部の手すりに階数を点字で表示することが有効である。
階段の手すりの例
「高齢者、障害者等の円滑な移動等に配慮した建築設計標準」
(令和7年5月国土交通省)より
[バリアフリー部会からのアドバイス]手すりの高さについて
児童生徒の利用を踏まえ、手すりの高さは70センチメートル程度に下げることが必要です。
[事例]
当事者からのコメント(感覚過敏)
階段は音の反響が大きい場所なので、聴覚が過敏な児童生徒のために、適正な吸音性能を持つ壁材などの採用が対応の一つとして考えられます。
建築物移動等円滑化誘導基準に相当する整備内容や設計例等については、「高齢者、障害者等の円滑な移動等に配慮した建築設計標準」(令和7年5月国土交通省)の「第2章 5.階段 5.2階段の標準設計」(P60~P64)を参照。
https://www.mlit.go.jp/jutakukentiku/content/001892119.pdf(※別ウィンドウで開きます)
2.エレベーターにおけるポイント
エレベーターの設置については、配慮を要する児童生徒等の垂直移動の基礎的整備です。新築、改築等を行う学校のみならず、既存施設においても、エレベーターの設置を検討することが重要です。
エレベーターの設置に当たっては、利用が想定される車いすのサイズや、休憩時間中に移動ができるなど障害のある児童生徒等の利用のしやすさやなどの観点から、エレベーターの仕様や設置場所などを検討することが重要です。また、車いす使用者だけでなく、視覚障害者、聴覚障害者の利用にも配慮して計画することも必要な視点です。
(エレベーターの配置、仕様等について)
- エレベーターは、障害のある児童生徒等が利用しやすいように、主要な経路に隣接して設置し、案内表示を適切に設置することが重要である。
- エレベーターの間口、かごの形状・大きさ、操作盤の位置、手すり等は、障害のある児童生徒等の利用に配慮して設置することが重要である。
[バリアフリー基準における規定]
- かご及び昇降路の出入口の幅は、80センチメートル以上
- かごの奥行きは、135センチメートル以上
- 移動等円滑化経路を構成するエレベーターにあっては、次に掲げるものであること
- かごの幅は、140センチメートル以上とすること
- かごは、車いすの転回に支障がない構造とすること
- 視覚障害者が利用するエレベーターについては、次に掲げるものであること
- かご内に、かごが到着する階並びにかご及び昇降路の出入口の戸の閉鎖を音声により知らせる装置を設ける
- かご内及び乗降ロビーに設ける制御装置(車いす使用者が利用しやすい位置及びその他の位置に制御装置を設ける場合にあっては、その他の位置に設けるものに限る。)は、点字、文字等の浮き彫り、音による案内、その他これらに類する方法により視覚障害者が円滑に操作することができる構造とする
- かご内又は乗降ロビーに、到着するかごの昇降方向を音声により知らせる装置を設ける
エレベーターの設計例(11人乗り ※最低限の大きさ)
「高齢者、障害者等の円滑な移動等に配慮した建築設計標準」(令和7年5月国土交通省)より
エレベーターのサイズ例
「高齢者、障害者等の円滑な移動等に配慮した建築設計標準」(令和7年5月国土交通省)より
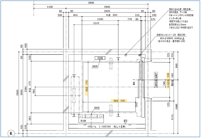
沖縄市立美原小学校 昇降機 平面図
出入口:幅120センチメートル、かご:幅170センチメートル、奥行き180センチメートル、20人乗り
[バリアフリー部会からのアドバイス]エレベーターのサイズについて
バリアフリー基準を最低限満たすエレベーターとしては11人乗りのエレベーターとなりますが、大型の車いすや電動車いす、複数の車いすでの利用などを想定すると、特に新築の場合には、15人乗り以上のエレベーターで計画をしておくと、日常的な学校備品の移動や災害時の避難の対応も含めて様々なケースで役立ちます。
- エレベーター乗降ロビーは、前面に車いす使用者が回転できるスペースを確保することが重要である。また、車いす使用者が直進でエレベーターに進入又は退出できるように設置することが望ましい。
[バリアフリー基準における規定]
- 乗降ロビーは、高低差がないものとし、その幅及び奥行きは、150センチメートル以上とする
- 障害のある児童生徒等が、休憩時間内の教室移動の際などに円滑に移動できるよう、要所にエレベーターを設置することが重要である。
- エレベーターのかご及び昇降路の出入口の戸には、エレベーターのかごの中を見通すことができるガラス窓を設置することが望ましい。
- 視覚障害者の利用に配慮して、エレベーター乗降ロビーの押しボタンやかご内の操作盤等に、点字等の表示を行うことが望ましい。
- 聴覚障害者の利用に配慮して、緊急時の応答等の音声情報を視覚情報等でも表示することが望ましい。
(既存施設への設置に当たっての留意点)
既存施設へのエレベーター設置においては、既存不適格となっている部分に対する遡及適用など建築基準法令上の対応が求められる場合があります。これらについては状況に応じて、既存不適格の緩和措置が適用できる場合があります。以下事務連絡で解説をしておりますので、この内容を参照しながら、設計者及び特定行政庁にご相談ください。
既存学校施設におけるバリアフリー化のための整備方策等について(PDF)(令和4年6月文部科学省事務連絡)
(エレベーター利用に当たっての運用について)
配慮が必要な児童生徒等のエレベーターの利用に当たっては、安全性の確保に留意しつつ、配慮が必要な児童生徒が他の児童生徒と一緒に移動できるよう運用を検討することも大事な視点です。
[事例]
建築物移動等円滑化誘導基準に相当する整備内容や設計例等については、「高齢者、障害者等の円滑な移動等に配慮した建築設計標準」(令和7年5月国土交通省)の「第2章 6.エレベーター・エスカレーター 6.1計画・設計の考え方、6.2エレベーターの標準設計」(P65~P73)を参照。
https://www.mlit.go.jp/jutakukentiku/content/001892119.pdf(※別ウィンドウで開きます)
3.段差解消機の活用ポイント
学校施設のバリアフリー化に当たっては、配慮を要する児童生徒等の垂直移動の基礎的整備としてエレベーターの設置が重要ですが、技術的な事情等により、早期に既存施設にエレベーターの設置が行えない場合もあります。そのような場合であっても、当面の措置として、バリアフリー基準に適合する段差解消機の活用も含めてきめ細かに計画することが重要です。以下において、段差解消機の活用のポイント、留意点について説明します。
(段差解消機の基準)
- 移動等円滑化経路に設置する段差解消機は車いすに座ったまま使用できるものであることなど以下の基準を満たした設備であることが必要。
[バリアフリー法施行令第19条第2項第6号、平成18年国土交通省告示第1492号]
(対象となる段差解消機)
車いすに座ったまま使用するエレベーターで、かごの定格速度が15メートル/分以下で、かつ、その床面積が2.25平方メートル以下のものであって、
- 昇降行程が4メートル以下のもの
- 階段及び傾斜路に沿って昇降するもの
(段差解消機の構造基準)
- 平成12年建設省告示第1413号第1第9号に規定するもの(かごや昇降路の構造、安全装置に関する規定)
- かごの幅は70センチメートル以上、かつ、奥行きは120センチメートル以上のもの
- 車いす使用者がかご内で方向を変更する必要がある場合にあっては、かごの幅及び奥行きが十分に確保されたもの
※車いすに座ったままでは乗降できない昇降機等は、建築物移動等円滑化基準に適合しない昇降機となるので、活用に当たっては注意が必要です。(文部科学省にて設定した「公立小中学校等施設のバリアフリー化に関する整備目標」におけるエレベーターにも該当しません。)
【移動等円滑化経路に該当する段差解消機の例】
(バリアフリー法施行令第19条第2項第6号に掲げるエレベーターその他の昇降機)
「高齢者、障害者等の円滑な移動等に配慮した建築設計標準」(令和7年5月国土交通省)より
【上記に該当しない昇降機等】

当事者からのコメント(車いす使用者)
- 学生時代に、階段昇降車を手配してもらい、先生が時間割に合わせて、移動の支援をしてくれました。一方で、階段昇降車での移動には時間がかかり、急な教室移動には対応できないことなど利用に困難さを感じることもありました。
- 階段昇降車を使う場合、操作に慣れた介助者が必要で、階段での走行中に不安を覚えることもあります。また、階段昇降機は重度の障害をもつ人など障害の程度によっては利用ができず、利用ができる場合であっても、車いすを運んでもらう必要があるため、車いす使用者にとっては利用に困難が生じます。
[事例]
建築物移動等円滑化誘導基準に相当する整備内容や設計例等については、「高齢者、障害者等の円滑な移動等に配慮した建築設計標準」(令和7年5月国土交通省)の「第2章 18.造作・機器 18.2段差解消機の設計標準」(P199~P203)を参照。
https://www.mlit.go.jp/jutakukentiku/content/001892119.pdf(※別ウィンドウで開きます)
(参考)
- 高齢者、障害者等の移動等の円滑化の促進に関する法律施行令(平成18年政令第379号)第19条第2項第6号
- 高齢者、障害者等の移動等の円滑化の促進に関する法律施行令の規定により特殊な構造又は使用形態のエレベーターその他昇降機等を定める件(平成18年国土交通省告示第1492号)第1第1号
