【整備手法】垂直動線の整備手法(3)
段差解消機を設置し垂直動線を確保(単独工事)今回は、段差解消機により垂直動線を確保した事例をご紹介します。段差解消機は、エレベーターと比較して、移動に時間がかかるなどの課題はありますが、エレベーターに比べ、費用や工期を抑えることができるメリットがあり、将来的に改築や廃校が想定されている学校などにおいても、配慮が必要な児童生徒等のために、比較的容易に垂直動線を確保することが可能です。
(1)埼玉県さいたま市立大宮小学校
- 竣工年
- 昭和50年
- 改修年
- 令和5年
- 取付階
- 3-4階
- 工期
- 約3か月(現場施工(電気工事・段差解消機の取付工事)は6日)
- 費用
- 約1,100万円(床補修、電気設備改修を含む)
-
設置された段差解消機
-
使用の様子
-
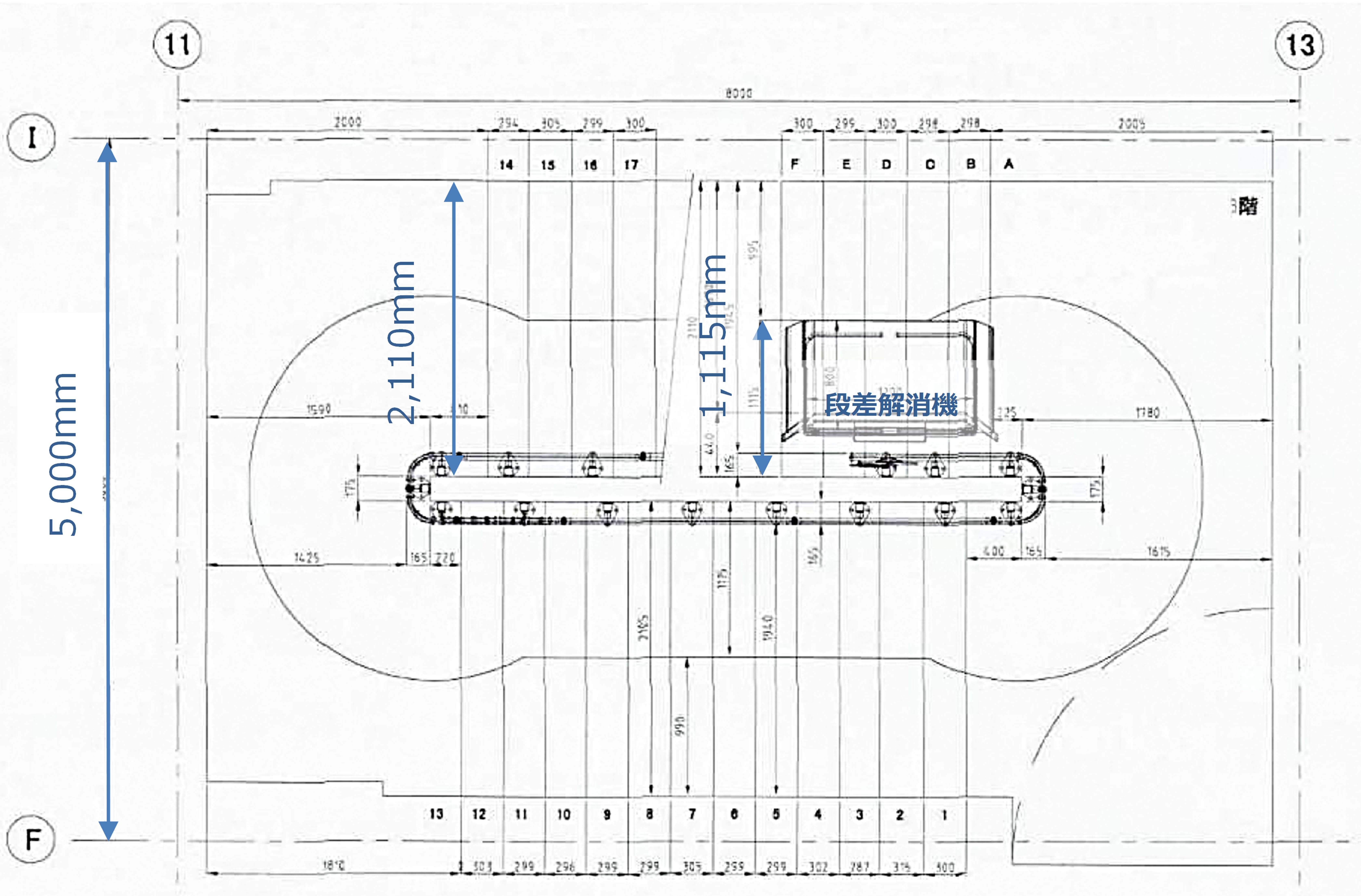
階段平面図
【段差解消機の仕様】
-
サイズ
乗降部:800ミリメートル×1,200ミリメートル
乗降部を開いた時の幅:1,115ミリメートル
閉じたときの幅:440ミリメートル
壁からレールまでの幅:165ミリメートル
-
耐荷重:180キログラム(定員1名)
-
安全装置 :過速度防止装置に加え、万が一、挟み込みや衝突が起きても障害物検知装置が作動して事故を未然に防げるようにしている。非常停止スイッチを押すことで即座に運転を停止することができる。
非常停止スイッチを押すことで即座に運転を停止することができる。 -
速さ:6メートル毎秒(1フロアの移動に2分ほど要する。)
【設置の経緯】
-
配慮が必要な児童の入学に合わせて整備した。
-
学校にはもともと3階まで行くことができるエレベーターが設置されていたが、増築棟の4階にある図書室にはアクセスができない構造となっていた。
-
そのため、配慮が必要な児童の入学に合わせ、3階から4階に段差解消機を設置した。
【運用】
-
使用する際は、生徒が乗車し、付き添いの教員がリモコンを操作して階を移動している。移動中は必ず教員が付いている。
-
階段の幅は2,110ミリメートルであり、段差解消機を動かしても約1メートルの幅があるため、段差解消機作動時も他の生徒が階段を利用することが可能。(作動時は、必ず教員が付き、段差解消機が作動している時であっても、他の生徒も階段を利用して良いこととしている。)
-
利用しない時は、埃がかぶらないようカバーをかけている。
-
利用しないときの状態
参考比較
【段差解消機の基礎情報】| 学校名 | 整備年 | 乗降部の寸法 (単位ミリメートル) |
耐荷重 (単位キログラム) |
取付階 | 費用 |
|---|---|---|---|---|---|
| 函館工業高等 専門学校 |
令和2年 | 800×1200 | 180 | 1-2階 | 約1,100万円 |
| さいたま市立 大宮小学校 |
令和5年 | 800×1200 | 180 | 3-4階 | 約1,100万円 |
| 大樹町立 大樹中学校 |
令和6年 | 800×1200 | 180 | 1-3階 | 約2,000万円 |
【段差解消機の工期等】
※乗降部の寸法について
- バリアフリー基準では、特殊な構造または使用形態のエレベーターその他の昇降機等の大きさについて、籠の幅は70センチメートル以上とし、かつ、奥行きが十分に確保されていることと定められている。
- 小中学校の階段を斜行型段差解消機の曲線階段用で走行する場合は、プラットホームの軌道が階段幅140センチメートル以内に納められるよう、プラットホームのサイズに800ミリメートル×1,200ミリメートルを採用する場合が多くなっている。
| 学校名 | 現場施工に係る 日数 |
段差解消機の 取付に係る日数 |
段差解消機の 製作期間 |
使用した 補助制度 |
|---|---|---|---|---|
| 函館工業高等 専門学校 |
2日 | 2日 | 約3.5か月 | なし |
| さいたま市立 大宮小学校 |
6日 | 2日 | 約3か月 | なし |
| 大樹町立 大樹中学校 |
1~2週間 | 約3日 | 約3か月 | 学校施設環境改善交付金 |
※階段幅について
- 建築基準法施行令第23条において、小学校における児童用のもの等の階段の幅の寸法は140センチメートル以上とすることと定められている。階段に段差解消機を設置する際は、段差解消機のレール等を除いて、140センチメートル以上の階段の幅を確保することに留意する。
