【整備手法】バリアフリートイレの整備手法
既存校舎にバリアフリートイレを整備する際は、空き教室やスペース等にバリアフリートイレを設置する手法や、ユニット工法により整備する手法があります。
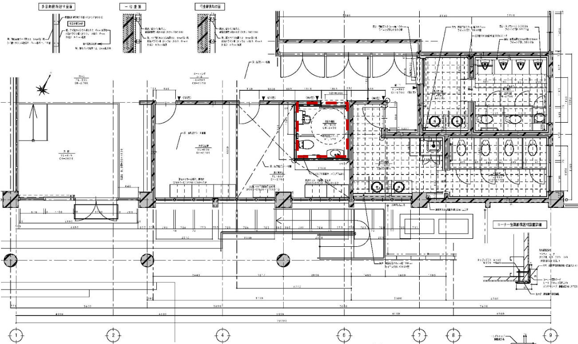
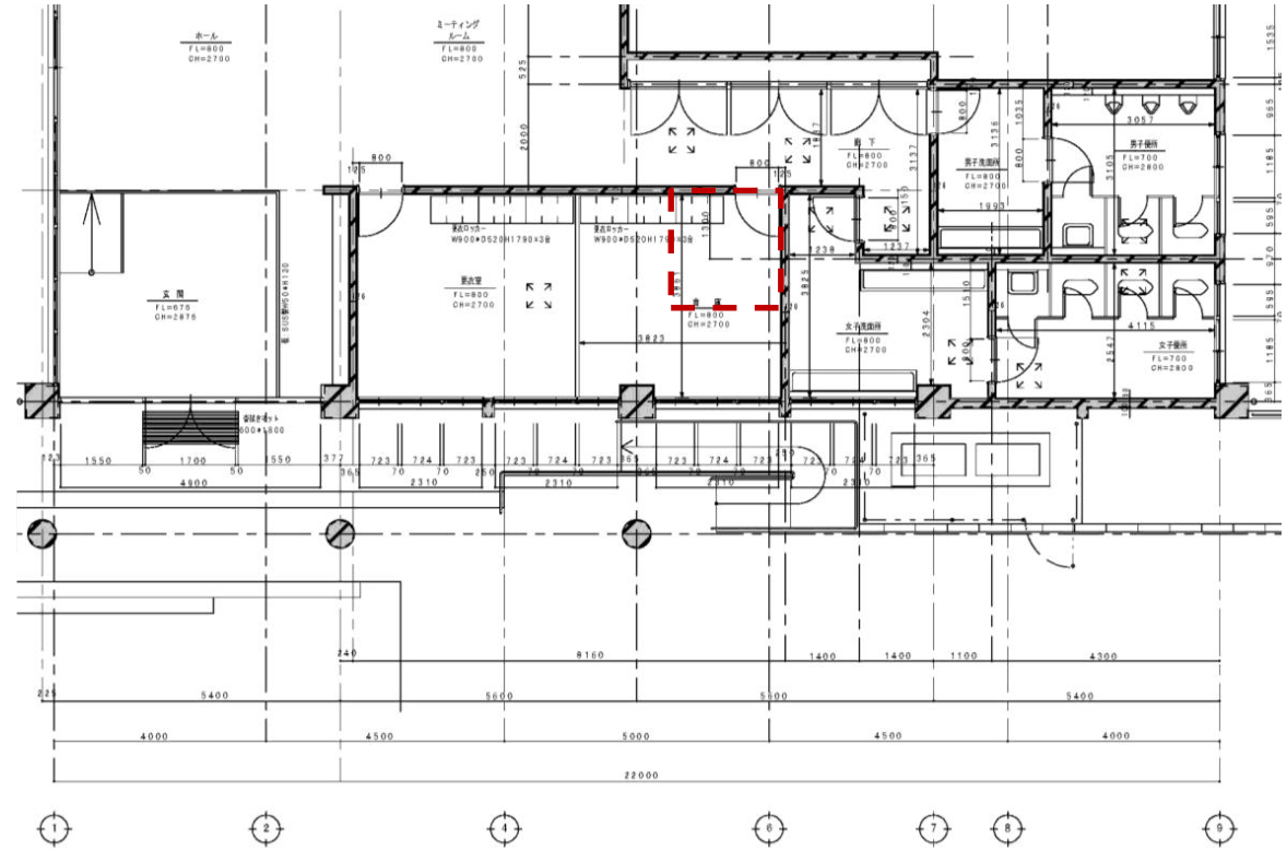
(1)空き教室や倉庫を活用し、増築せずにバリアフリートイレを設置した事例(横浜国立大学教育学部附属横浜小学校・横浜中学校)
- 生徒数
- 610人(令和7年度)
- 構造
- RC造
- 竣工年
- 平成元年等
- 改修年
- 令和5年
- 工期
- 約2.5か月
- 使用した補助制度等
- 公益財団法人日本財団 助成プログラム 公益・福祉募集(※インクルーシブ教育のための人材育成、継続的データ収集による教育実践の効果検証等の複数の取組みメニューのうちの1つとしてバリアフリー化を実施)
-
改修前
-
改修後
(2)ユニット工法を採用した事例(埼玉県さいたま市立第二東中学校)
- 生徒数
- 527人(令和7年度)
- 構造
- RC造
- 竣工年
- 昭和60年
- 改修年
- 令和2年
- 工期
- 約4か月(工場製作期間含む。施工は3日ほどで完了)
- 費用
- 約7,200万円(バリアフリートイレ1基、1~3階までの同系統の男女トイレの改修)
- 使用した補助制度
- 学校施設環境改善交付金
- さいたま市では、生徒が利用しやすいトイレ環境を整備するため、バリアフリートイレも含めた学校トイレの洋式化を進めている。その中で、工場で製造されたユニットを用いることで現場作業の簡略化を図るユニット工法を導入することとした。
- 具体的には、間仕切り壁等の仕上げや、パイプスペースの上下階を結ぶ竪管等については現場作業で整備し、トイレ一式(便器、給排水管、手すりや紙巻器等)は工場で製造されたユニットを用いるものである。
- これにより工事騒音の軽減を図ることができ、従来、夏休み期間にトイレの改修工事を行っていたが、授業が行われている秋・冬にも工事を行うことができるようになり、トイレ改修の整備ペースをあげることができるようになった。
- 壁面に配管することで、上下階を結ぶ竪管の箇所を最小限にすることができ工期短縮につながるとともに、床面に段差が生じないメリットも生じた。
- また、維持管理面では、配管に不具合等があった際に、壁や天井の解体撤去を行わずに、ユニットの蓋を開ければ内部のメンテナンスができるメリットも生じた。
- さいたま市の近年のトイレ改修工事では、設備工事の施工者の不足から、入札不調が起きていたが、施工者の人数を抑えることができるユニット工法での発注により、入札不調のリスクを回避することができた。
-
1階トイレ図面
-
2・3階トイレ図面
-
1階みんなのトイレ(バリアフリートイレ)
-
2・3階トイレ
(3)体育館の倉庫を利用してバリアフリートイレを整備した事例(滋賀県草津市立志津南小学校)
- 児童数
- 584名(令和7年度)
- 構造
- RC造
- 竣工年
- 昭和62年
- 改修年
- 令和5年
- 費用
- 約3,100万円
- 工期
- 約3.5か月
- 使用した補助制度
- 学校施設環境改善交付金
- 体育館の男女トイレの洋式化に合わせて、バリアフリートイレの整備を実施。
- 倉庫を改修し、バリアフリートイレを新規に設置した。
-
改修前 倉庫
-
改修後 バリアフリートイレ
-
改修前 女子トイレ
-
改修後 女子トイレ
-
改修前図面(赤枠部分がバリアフリートイレとなった場所)
-
改修後図面(赤枠部分がバリアフリートイレ)
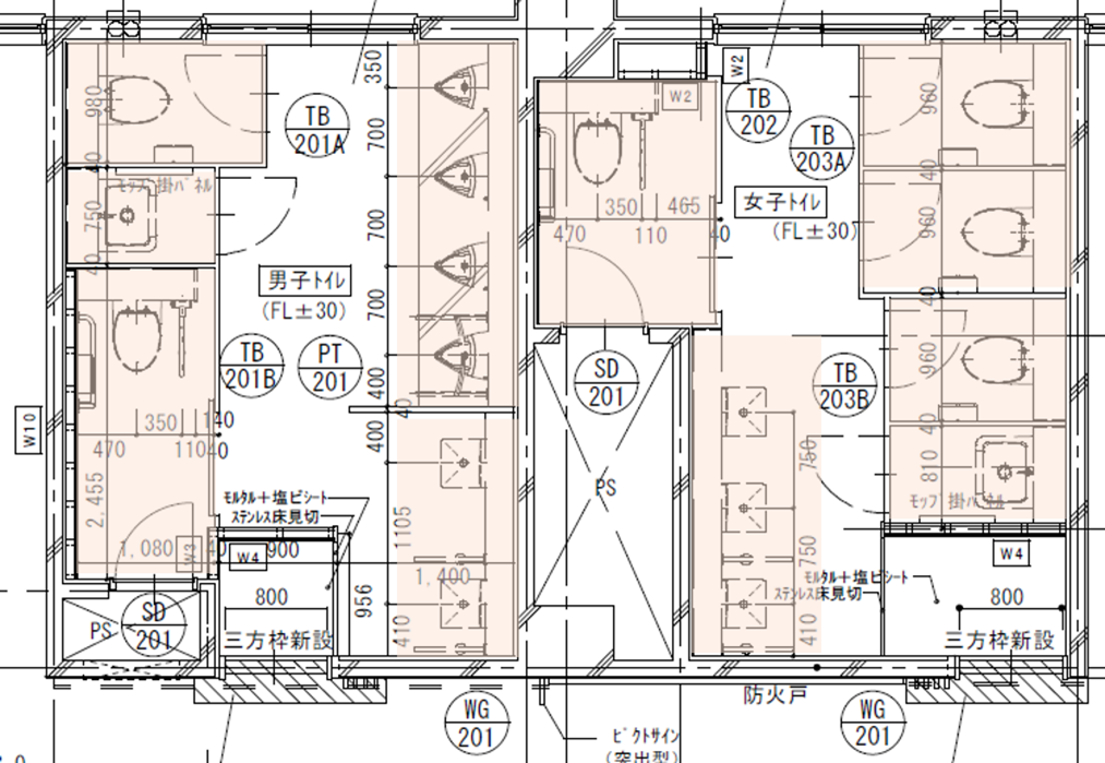
[バリアフリー検討部会からのアドバイス]出入口と便器の配置
バリアフリートイレを計画する際は、出入口と便器の位置関係に留意することが大切です。
扉がある位置の一直線上に便器を配置してしまうと、誤って扉が開いてしまったときに、中の様子が外からすぐに見えてしまいます。利用者のプライバシーに配慮して、扉と便器の位置は、下の図のとおり、一直線上に配置しないことがポイントです。

便房の設計例(「高齢者、障害者等の円滑な移動等に配慮した建築設計標準(令和7年5月)」より)
